< 検索結果に戻る

住宅用賃貸物件

雪ノ下メゾネットアパート A棟
(鎌倉駅)

所在地
鎌倉市雪ノ下3-4−12
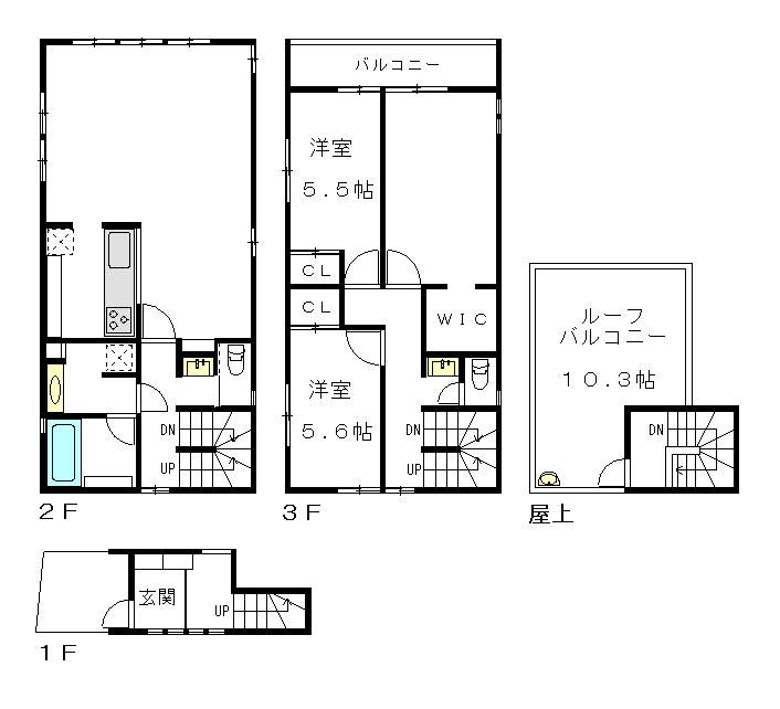
間取り
3LDK
面積
114.37㎡
築年月
2025年 (平成37年) 9月
賃料
330,000円
敷金/礼金
1ヶ月 / 1ヶ月

賃貸おすすめメモ

鶴岡八幡宮から程近い30万円越え新築物件

鶴岡八幡宮からほど近い落ち着いた住宅街に、100㎡を超えるゆとりある新築メゾネットが完成しました。

建物は2階から3階にかけての造りで、リビングは22帖。大きな窓は北側に位置していますが、直接の日差しが入るというよりかは柔らかな光が差し込みますので、静かで落ち着いた雰囲気を演出しています。間接照明や床暖房を備えたデザイナーズ仕様で、家具付きなのも魅力です。入居後すぐに快適な暮らしがスタートできます。

IMG_6108.JPG

寝室はすでに段差が設けられており、そこをベッドスペースとして使えるのがユニークなところです。布団を敷けば高級旅館のような雰囲気も漂い、ちょっと特別な気分で休むことができます。

IMG_6115.JPG

そして屋上にはルーフバルコニーが広がります。3階部分という高さに加え、周囲に高い建物がないので、ぐるりと360度の景色を楽しめるのは大きな魅力です。

IMG_6118.JPG

周辺環境

雪ノ下は鎌倉の中心にありながら、観光客でごった返す小町通りからは少し離れているため、落ち着いた暮らしができます。物件のすぐ前には鎌倉の名門・附属小学校があり、通学する子どもたちの真面目で整った雰囲気が街全体に漂っています。

休日には鶴岡八幡宮や鎌倉宮を散策したり、小町通りでお気に入りのカフェを探したりするのも良いですね。私が訪れた中では「il piccione doro」というイタリアンがおすすめです。気取らず入れるカジュアルな雰囲気ながら、料理もワインもつい進んでしまう素敵なお店でした。

鎌倉らしい歴史と風情を感じつつ、上質な住まいで日常を過ごす。そんな贅沢をかなえてくれる新築物件です。

物件概要

賃料
330,000円
物件タイプ
アパート 戸建
間取り
3LDK
物件名 雪ノ下メゾネットアパート A棟
所在地 鎌倉市雪ノ下3-4−12
交通アクセス JR横須賀線 鎌倉駅 / 徒歩 17分
JR横須賀線 鎌倉駅 / バス 6分 / 停歩 2分
物件タイプ アパート 戸建 階建タイプ 2階 / 3階建
種別 居住用 賃料 330,000円
礼金 1ヶ月 敷金 1ヶ月
共益費 10,000円 更新料 新賃料1ヶ月分
面積 114.37㎡ 現状 空家
建物構造 木造 火災保険 要加入 - / 2年
間取り 3LDK 部屋 LDK: 22
洋室: 5.6
洋室: 5.5
洋室: 7.5
築年月 2025年 (平成37年) 9月 向き
契約期間 2年 駐車場料金
施設・バス 大学前 から徒歩 2分 引渡し時期 即時
諸費用(初期) 除菌消臭 / 16,500円 諸費用(継続)
その他料金

雪ノ下メゾネットアパート A棟 についてのお問い合わせ・内見予約のご依頼

お問い合わせ・ご相談はお気軽にどうぞ 0467-38-8680 営業時間 8:00AM ~ 9:00PM / 年中無休
ご希望をお聞きします。未公開物件など、オススメ物件をメールでお知らせ。

江ノ島電鉄「鎌倉駅」の賃貸物件

3階から海が見える材木座戸建
(和田塚駅鎌倉駅)

所在地
鎌倉市材木座5-4−18
間取り
3LDK
面積
90.51㎡
築年数
2016年 (平成28年) 5月
賃料
250,000円

鎌倉AP 1号棟 1階
(鎌倉駅)

所在地
鎌倉市大町1-14-18
間取り
1LDK
面積
33.21㎡
築年数
1970
賃料
60,000円

トミーフラット 101
(鎌倉駅)

所在地
鎌倉市材木座3-8-12
間取り
2LDK
面積
52.37㎡
築年数
2003年 (平成15年) 1月
賃料
116,000円

若宮ハイツ 1号棟 302
(和田塚駅鎌倉駅)

所在地
鎌倉市由比ガ浜2-13-1
間取り
3LDK
面積
53.44㎡
築年数
1993年 (平成5年) 3月
賃料
200,000円