売買おすすめメモ
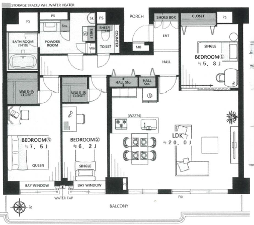
東側に広いバルコニーのある3LDKマンション
■動画がありますがリフォーム工事中につき眺望と外観のみになります
■東向きの部屋です
バルコニーが東側にあって、そのバルコニーに沿ってリビング、6.2帖の洋室、7.8帖の洋室が並んでいますので、この3つの部屋は全て東向きとなります。
下の写真はバルコニーの北側方面の景色です。
よく、「1日の始まりに豊かな朝陽を浴びることで、生活リズムが整います」と言われています。これは、朝日を浴びることで、体内時計がリセットされ、日中の活動と夜間の睡眠のリズムが整いますし、また、朝日を浴びてから約14~16時間後にメラトニンが再分泌され、夜の快眠につながるそうです。
他にも朝日を浴びる効用として、精神の安定や集中力アップ、免疫力向上などの効果も挙げられています。
朝日の当たる部屋で心身ともに健康を手に入れましょう。
また、東向きということで、厳しい西日を避けられので、午後の室温上昇を抑えられますね。温暖化が進んでいる中で、あえて南向きや西向きの方角は避けたいという方にはちょうどいいかと思います。
どうしても南からの陽光を感じたいという方は、バルコニーに出れば、十分に日差しを感じられますし、このバルコニーでお洗濯物もカラッと乾きます。
■「99㎡」と「6階」が織りなす開放感
LDKの広さが20帖以上あり、ご家族が集うリビングは、北欧風の優しい木目が美しい「ヒュッゲスタイル」でのリノベーションを予定しています。
さらに、6階からの眺望は視界を遮るものが無く、良好な眺望が楽しめます。
下の写真は北欧の「ヒュッゲ」スタイルの施工例です。当物件とは全く関係ありませんが、北欧のヒュッゲスタイルの参考としてご覧ください。
99.86㎡という広めのマンションで、しかも20帖の開口部の広いリビングなので、開放感はありますね。
■周辺環境
藤沢駅までは徒歩26分。歩くのが好きな方にとっては問題ない・・というより、むしろ「健康にいい」と思える距離かもしれません。
このマンションのすぐ目の前には「岩谷不動入口」のバス停があります。このバス停から藤沢駅南口までは約10分です。雨が降った日はこのバスを使うと便利ですね。
サーフィンなどマリンスポーツをする方にとっては、海からの近さは必須ですよね。朝起きてすぐにいい波に乗れます。サーフィンが終わったら、すぐに家に戻って冷えた体を温められます。シャワーを浴びて、さっぱりしたら、午後はゆったりと・・海辺の町の生活を楽しみましょう!!素敵なビーチライフが送れますよ。 江ノ電の柳小路からは、徒歩8分の立地です。
お買い物は便利
このマンションから最も近いのがフジスーパー鵠沼藤が谷店です。歩いても2分ほどの距離にあります。このフジスーパー鵠沼藤が谷店からさらに藤沢駅方面に向かって歩いて行くとコンビニがあり(マンションからは徒歩8分)また、さらに藤沢駅方面にヤオコー藤沢片瀬店(マンションから徒歩12分)があります。
藤沢駅からは少し遠いと感じますが、日常の生活において、特にお買い物は周辺のお店で済ますことができますね。


